|
Oops: Korrekturen und Nachträge zu Ausgabe 5/2017
Seite 19: Die Bedämpfung des Cobra-Horns II aus unserem Special “Hornlautsprecher” warf
die Frage auf, wo genau die Bedämpfung der Seitenwände endet. Die Auskleidung der Seitenwände mit Polyesterwatte reicht zwischen den senkrecht stehenden
Teilern mit den Maßen 130x300 mm und 140x300 bis unter den Deckel des Gehäuses.
Seite 31: In die Zeichnung des Eckhorn 18 Mk2 hat sich eine fehlerhafte Bauteil-Bezeichnung
eingeschlichen: Auf der Koordinate “D11” ist ein Bauteil mit “L” bezeichnet, das tatsächlich “K” heißt. “L” ist auf der Koordinate “C12-C13” bereits korrekt eingetragen. Es handelt sich um die
Versteifung zwischen innerer und äußerer Seitenwand.
Seite 62: Die Beschreibung der Bedämpfung unseres “Mikro-Horn 2018” fiel in HOBBY HiFi 5/2017 noch
nicht so ausführlich aus, wie wir es inzwischen praktizieren. Dies sorgte bei einigen Anwendern für Unklarheit bezüglich der Anordnung der Polyesterwatte im Horngehäuse. Die Beschreibung präzisieren wir daher:
Im Artikel steht: “Am Hornanfang zwischen Teiler 1 und 5 werden ca. 8-10 g Polyesterwatte eingelegt. Die Absorberkammer hinter dem Tieftöner wird mit ca. 35 g Polyesterwatte bedämpft.”
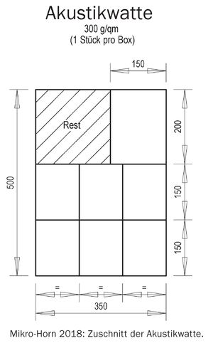
8-10 g Watte, das ist ein Stück von ca. 15x20 cm bei einem Flächengewicht der Watte von 300 g/qm. Dieses liegt ab dem Anfang des Horns im dort nur 2 cm hohen (und konstant 15 cm
breiten) Hornverlauf, womit der Bereich vom Anfang bis zum ersten Knick des Hornverlaufs komplett gefüllt ist. 35 g Watte für die Absorberkammer, das sind z. B. 6 Stücke von je ca. 13x15 cm. Diese werden
aufeinander liegend so stark zusammengedrückt, dass sie in den Hohlraum hinein passen. Polyesterwatte wird häufig in 35 cm breiten Bahnen oder 35x50 cm großen Stücken geliefert.
Hier bietet es sich an, die 35 cm zu dritteln. Dies ergibt etwas weniger als die eigentlich benötigten 13 cm, liegt aber innerhalb der zulässigen Toleranz. Die Skizze zeigt unseren Zuschnittplan.
 |
|